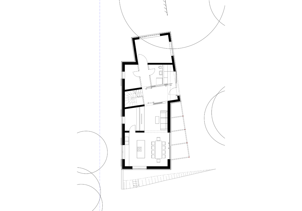
Im stark durchgrünten Stadtteil Hellerau, umgeben von altem Laubwaldbestand und großzügigen Gärten entsteht ein Einfamilienhaus für eine vierköpfige Familie. Beim Entwurf waren neben den städtebaulichen Randbedingungen auch die spezifische Gestaltungssatzung für Hellerau zu berücksichtigen. Das Gebäude wurde als zweigeschoßiger Kubus mit Satteldach geplant. Ein eingeschoßiger Anbau mit Flachdach bildet unter Einbeziehung des Geländeverlaufs den Eingangsbereich und beherbergt ein Büro. Die Aussenwandverkleidung aus einer naturbelassenen Holzverschalung verbindet die unterschiedlichen Bauformen zu einem spannungsvollen Ensemble.
Bauherr: Privat
Bauort: Dresden, Hellerau
Baujahr: 2021
Leistungsphase: 1 - 6


